网站首页
防雷产品
防雷工程
防雷检测
防雷维保
工程案例
资质荣誉
东雁讲堂
联系我们
人才招聘
位置:
首页
>>
东雁讲堂
>>
供电系统怎么区分?
返回上一步
雷电防护基础知识
防雷讲堂
防雷与接地基础知识详解
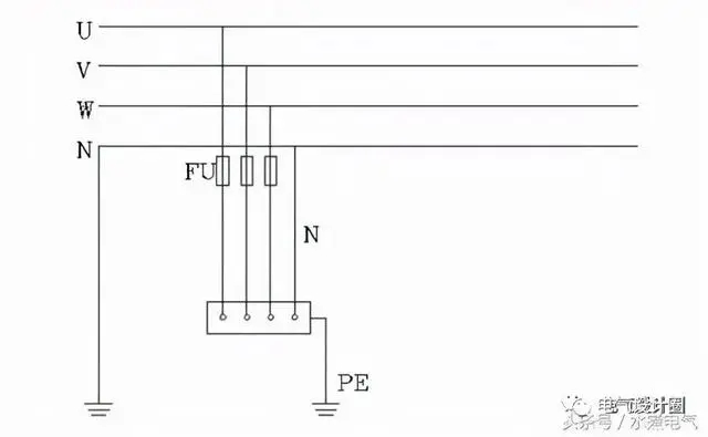
供电系统怎么区分?
雷电防护,检测先行
供电系统怎么区分?
TT供电系统的特点是什么?
2023-12-22
上一篇:
TN-C-S供电系统的特点是什
下一篇:
IT供电系统的特点是什么?
首页
产品
电话
联系